Cyc walls - build or use pre-fab? - Page 3 at DVinfo.net
DV Info Net

Go Back   DV Info Net > Most Recent Additions... > Home, Away From Home
Register FAQ Today's Posts Buyer's Guides

Home, Away From Home
Studio Space (Home) and Traveling Tips (Away From Home).

Reply
 
Thread Tools Search this Thread
Old October 19th, 2021, 01:52 AM   #31
Inner Circle
 
Join Date: Nov 2005
Location: Lowestoft - UK
Posts: 4,070
Re: Cyc walls - build or use pre-fab?

If you want clear space and flexibility, then have you considered a floor supported truss. Back in the 2000s I had a flexible space to look after and I invested in some triangular aluminium truss that I could build into different shapes to suit what we were doing. My total height was 4.5m to the ceiling, which was absolutely NOT load bearing - 120 yr old plaster and lath! The truss was mainly 2m sections, with some shorter ones, and various corners and cross pieces. So we might have had 6 legs and put in cross trusses where we needed to support equipment or screens, drapes etc. The mistake was using 3 chord triangular - which has an 'up' and a 'down' which limited some designs because we'd want to go the wrong way - I'd buy 4 chord truss now, as it doesn't have orientation issues. You could use it on the edges of the set, and hang cloths and drapes from it, use it to hang your lights or speakers, support cables, and sometimes just look good, with the black masking on the outside - great for industrial feel. You can add extra tube across the top, or hanging down for lights that must be in certain places and then when that shoot is done, part-dismantle it and build a different shape - ideal for screening off.

Sound wise - large hard panels do create great reflectors and with a big space, it's always worth creating more absorption than you may think - so in larger spaces make sure every parallel pair of surfaces has one of them covered in panels. You can often get away with doing a great job on just two walls of four, and then when you add the drapes it gets better and better. two hard surfaces facing each other are always bad, and in bigger spaces can be quite noticeable.
Paul R Johnson is offline   Reply With Quote
Old October 21st, 2021, 02:19 PM   #32
Inner Circle
 
Join Date: Sep 2006
Location: Sydney.
Posts: 3,050
Re: Cyc walls - build or use pre-fab?

With your latest design, looks like you’ve moved the audio recording booth away from the outside wall, further into the building David. That should help isolating from any sound coming from outside the building.

Don’t forget to run tests for spurious Radio Frequency interference at different times over 24x7 periods at various points in the site, before you start any construction.

Now’s the time you need to find out if you have to cover your whole place in chicken wire, like we nearly had to do, before we settled on a star ground electrical wiring system.

Cheers.
__________________
Drink more tap water. On admission at Sydney hospitals more than 5% of day patients are de-hydrated.
Allan Black is offline   Reply With Quote
Old October 21st, 2021, 07:18 PM   #33
Major Player
 
Join Date: Mar 2015
Location: Bentonville, AR
Posts: 242
Re: Cyc walls - build or use pre-fab?

Another big thank you to everyone. I won't be able to sound proof the large space but certainly want to sound treat it during construction with techniques that would help and be more costly later. I hadn't realized that the larger space would be more problematic so I need to determine some things to do to help for sure. So I have some more learning to do to determine what to do now.

I do however plan on making that small green screen room sound proof so I have a fall back option in case of a high noise day. That was a suggestion a nice guy made.
David Banner is offline   Reply With Quote
Old October 21st, 2021, 07:21 PM   #34
Major Player
 
Join Date: Mar 2015
Location: Bentonville, AR
Posts: 242
Re: Cyc walls - build or use pre-fab?

Quote:
Originally Posted by Allan Black View Post
With your latest design, looks like you’ve moved the audio recording booth away from the outside wall, further into the building David. That should help isolating from any sound coming from outside the building.

Don’t forget to run tests for spurious Radio Frequency interference at different times over 24x7 periods at various points in the site, before you start any construction.

Now’s the time you need to find out if you have to cover your whole place in chicken wire, like we nearly had to do, before we settled on a star ground electrical wiring system.

Cheers.
I would like more info on this please. Is this issue you are describing an interferance issue with wireless audio due to the building's electrical system? Or is this issue related to radio interferance from the location the building is built in? I haven't checked the air waves at the locations I'm thinking about buying yet...oooh
David Banner is offline   Reply With Quote
Old October 21st, 2021, 07:40 PM   #35
Major Player
 
Join Date: Mar 2015
Location: Bentonville, AR
Posts: 242
Re: Cyc walls - build or use pre-fab?

should I angle the wall of the green screen room would that help?
Attached Thumbnails
Cyc walls - build or use pre-fab?-slant.jpg  
David Banner is offline   Reply With Quote
Old October 22nd, 2021, 05:20 PM   #36
Inner Circle
 
Join Date: Sep 2006
Location: Sydney.
Posts: 3,050
Re: Cyc walls - build or use pre-fab?

Quote:
Originally Posted by David Banner View Post
I would like more info on this please. Is this issue you are describing an interferance issue with wireless audio due to the building's electrical system? Or is this issue related to radio interferance from the location the building is built in? I haven't checked the air waves at the locations I'm thinking about buying yet...oooh
David, as said previously, your studio needs special electrical power cabling that blocks all RF, that’s Radio Frequency wireless interference from police, ambulance, civil rescue, CB radio etc. in worst situations each time you open audio faders.

To do this you need pro help to test for RF, your construction people might give you leads, and call local radio, tv stations and people who know what happens if you get it wrong.
Cheers.
__________________
Drink more tap water. On admission at Sydney hospitals more than 5% of day patients are de-hydrated.
Allan Black is offline   Reply With Quote
Old October 22nd, 2021, 10:29 PM   #37
Major Player
 
Join Date: Mar 2015
Location: Bentonville, AR
Posts: 242
Re: Cyc walls - build or use pre-fab?

Thank you again very much, Allan
David Banner is offline   Reply With Quote
Old October 23rd, 2021, 01:10 PM   #38
Inner Circle
 
Join Date: Nov 2005
Location: Lowestoft - UK
Posts: 4,070
Re: Cyc walls - build or use pre-fab?

Sound treatment doesn't always have to be clever or technical and mega expensive. Film studios, and larger TV studios have frequently used timber battens vertical on the wall, 2" deep, with rock wool in the gaps - covered with chicken wire to prevent the Rockwell falling out. Looks horrible, but while rock wool this thin does little for sub 500Hz, it's very good at deadening the 'big' sound you get from slapback from the parallel surfaces. As you usually cover the walls with drapes or green cloths anyway. There are some big studios waiting to be knocked down on the Thames in London - and in this picture you can see this kind of construction - I found another picture from 2016 when the place was in use - I loved it there.

I'm very interested in the comments about screened mains wiring. In the UK this is very rare. Where there are large EMF fields, we'd still put cable in steel conduit, but I do have to say that I have never deviated from our standard wiring scheme here, which is ring circuits, NOT radials. Our power for control rooms, and all normal areas would be flat twin and earth in 2.5mm2 size, rated at 32A. In practice this means audio equipment, for example is actually enclosed in a ring main, surrounding it - nowhere to hide. We don't get problematic interference. I've never done a noise survey on radio mic channels, for instance. Never had to stick the studio in a Faraday cage. The BBC for many years had technical earths (grounds) - as in a totally separate clean grounding network throughout a building, leaving the mains grounds to just be there for safety purposes. The jury was always out on the technical ground as it only took a single badly designed piece of kit that had the mains earth attached to the chassis for it to introduce hum into a quiet system - usually when bolted into a 19" rack. Technical grounds are now quite rare. Where screening is required - maybe to make absolutely sure there is no leakage from cables feeding dimmers, etc, then the dimmers would be fed locally from a distribution point, and that point wired back to the intake with Steel Wire Armoured cable (SWA) with glands grounding both ends. Now we're into LEDs, the higher current supplies seem to be vanishing. My 63A 140V single phase outlet in my studio is empty most of the time - my current consumption has gone right down. My floor area of course is smaller, but mains borne interference and RF interference isn't an issue at all for me, and hasn't been for years.
Attached Thumbnails
Cyc walls - build or use pre-fab?-tls.2.jpg   Cyc walls - build or use pre-fab?-tls2-16.png  

Paul R Johnson is offline   Reply With Quote
Old October 24th, 2021, 06:20 PM   #39
Major Player
 
Join Date: Mar 2015
Location: Bentonville, AR
Posts: 242
Re: Cyc walls - build or use pre-fab?

Thank you Paul, very much.
That is encouraging to hear some sound treatment might not have to be too clever, technical or mega expensive.
Those photos are good.

With lower draw LED fixtures I was wondering how much power I should have available. I do not plan on using lots of high power tungsten lights, but ~20 LED space lights do suck some power, but not insane amounts. No telling what someone coming in to rent the place might want to use
David Banner is offline   Reply With Quote
Old October 24th, 2021, 07:03 PM   #40
Inner Circle
 
Join Date: Sep 2006
Location: Sydney.
Posts: 3,050
Re: Cyc walls - build or use pre-fab?

Your electrician can give you 3 phase power requirements and costs based on your list of current gear David. Add it up then add 50% to cover new gear you haven’t thought of yet.

Check out ‘Magnesite’ cork and rubber compound flooring for your studio. It covers your buildings concrete floor. In 1962 we had it at NBN Channel 3 in Newcastle north of Sydney, it’s designed for stable, silent tracking for studio cameras. It’s now used for a lot of other similar applications and the compound has improved and the price has come down a lot over the years.

All NBNs studio walls and ceiling were covered in sound absorbing Bullswool and this was held in place with small gauge chicken wire. This contributed to blocking any RF inference and while I was there, we never had any trouble with electrical grounding problems, hums, clicks or anything.

Cheers.
__________________
Drink more tap water. On admission at Sydney hospitals more than 5% of day patients are de-hydrated.
Allan Black is offline   Reply With Quote
Old October 25th, 2021, 12:45 AM   #41
Inner Circle
 
Join Date: Nov 2005
Location: Lowestoft - UK
Posts: 4,070
Re: Cyc walls - build or use pre-fab?

Even with LED, power requests can often be higher than you expect. Maybe somebody needs to lift something with light weight truss, but they need three phase for the motors. Sometimes people have equipment with power connectors determined by where they usually go. For instance, if you do a music video, then they may bring their touring kit because it does their tracks, in ears and monitors. It will probably be rigged, if it was in the UKm with single or three phase on 63 amp connectors. Even if it only needs less than 10. Having power available if required, makes sense. If you have electricians in, the cost for just in case supplies is trivial but useful.
Paul R Johnson is offline   Reply With Quote
Old November 19th, 2021, 08:52 AM   #42
Major Player
 
Join Date: Mar 2015
Location: Bentonville, AR
Posts: 242
Re: Cyc walls - build or use pre-fab?

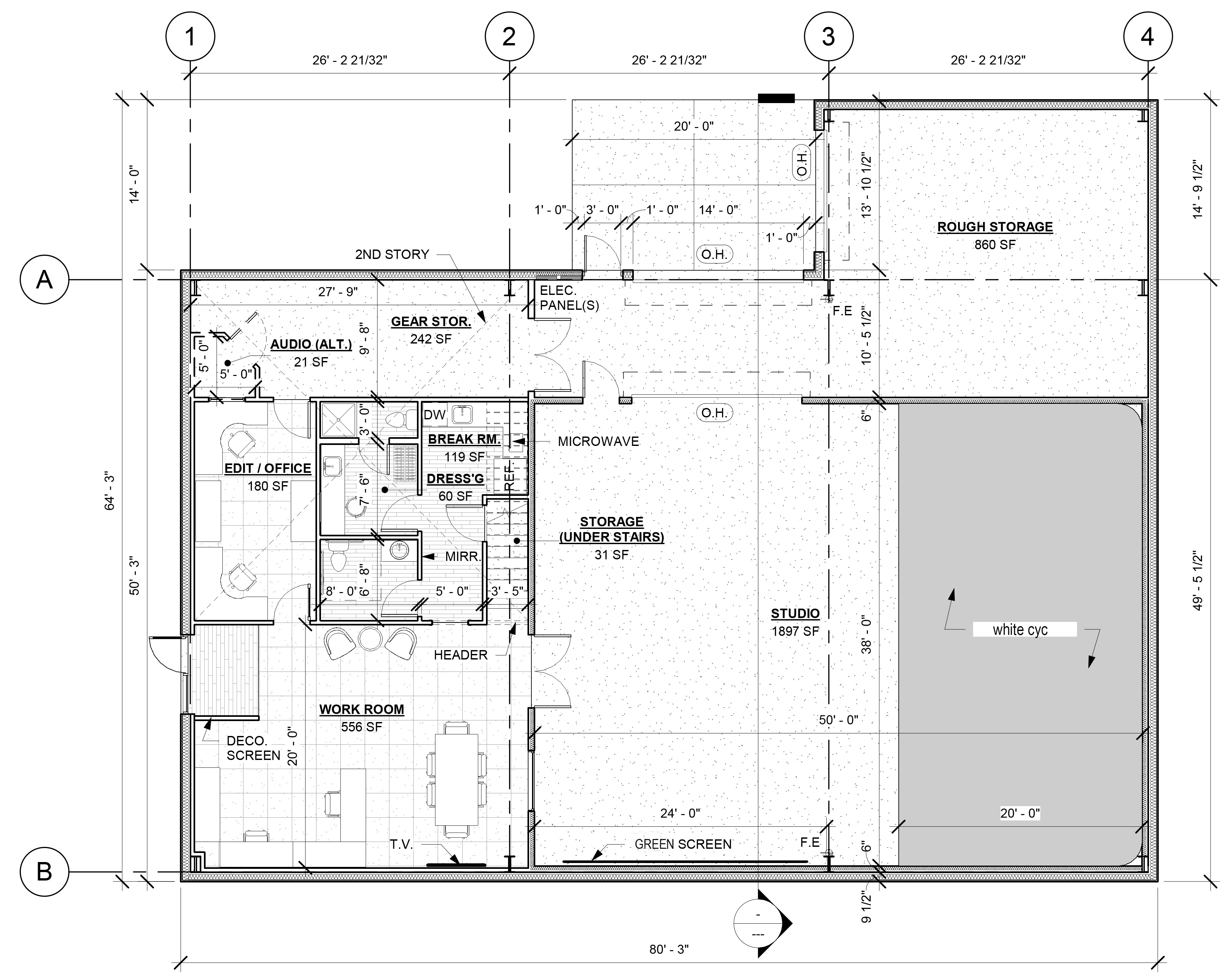
Hi again. Wanted to share update. We've been working on design and fixing some things.
Here is our plan.
Planning on building a box building inside of a PEMB box building to isolate from exterior noise.
Plan on having large black curtains that can slide around to cover up things in side the studio as needed (such as green screen and OH door).

Do you recommend the electric panels being where they are or inside the studio?
I'm thinking to increase the audio booth by another 6 or 8 inches to allow for more space to compensate for interior deadening
Attached Thumbnails
Cyc walls - build or use pre-fab?-new-studio-layout.jpg  
David Banner is offline   Reply
Reply

DV Info Net refers all where-to-buy and where-to-rent questions exclusively to these trusted full line dealers and rental houses...

B&H Photo Video
(866) 521-7381
New York, NY USA

Scan Computers Int. Ltd.
+44 0871-472-4747
Bolton, Lancashire UK


DV Info Net also encourages you to support local businesses and buy from an authorized dealer in your neighborhood.
  You are here: DV Info Net > Most Recent Additions... > Home, Away From Home


 



All times are GMT -6. The time now is 07:03 PM.


DV Info Net -- Real Names, Real People, Real Info!
1998-2026 The Digital Video Information Network